GIRAFFE
360
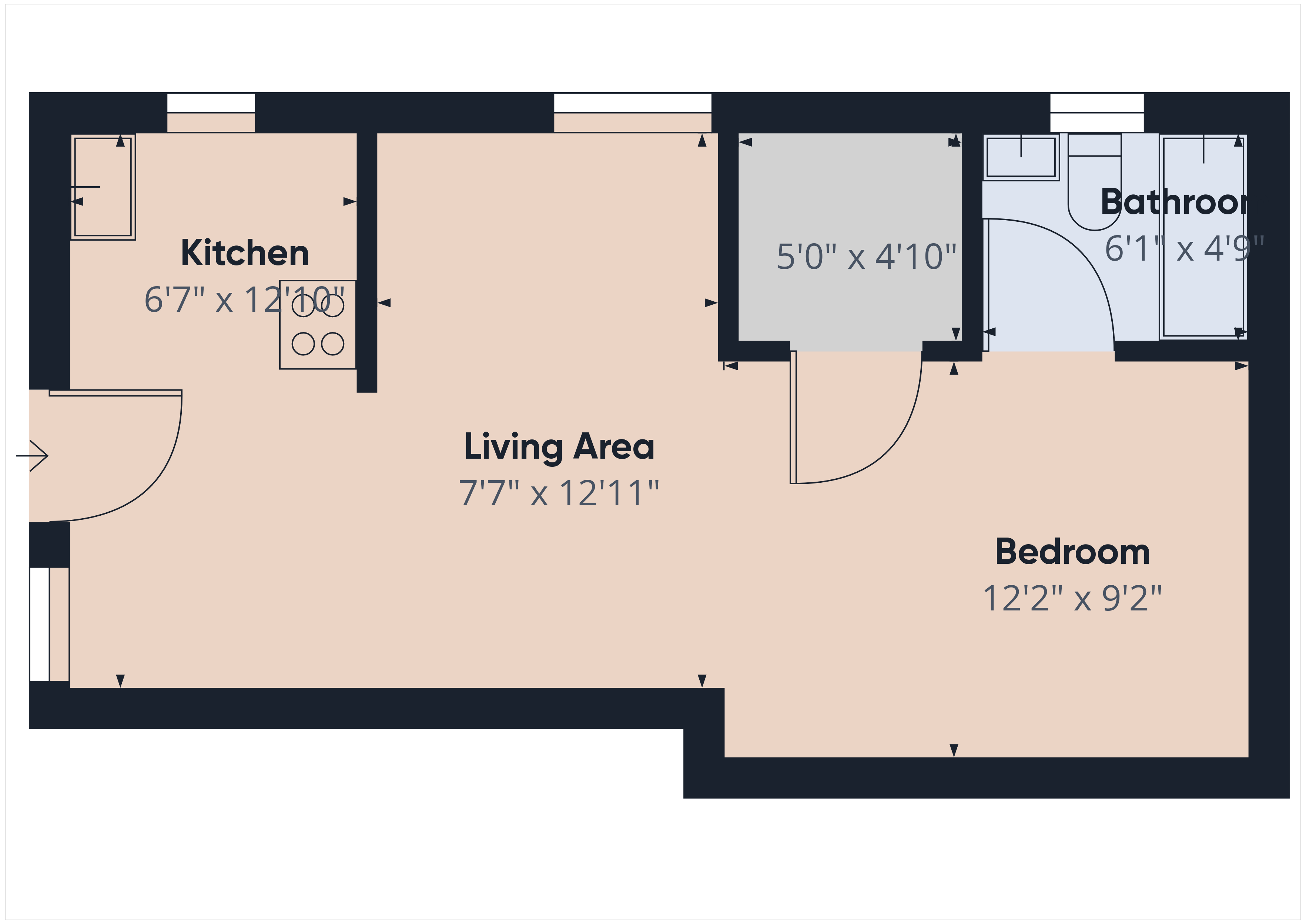
Alma Guadalupe Condominiums | 5300 Guadalupe Street
Virtual tour
Copy link
Images
13
Download
Floorplans
1
Download