GIRAFFE
360
ROBERT.VPA
Virtual tour
Copy link
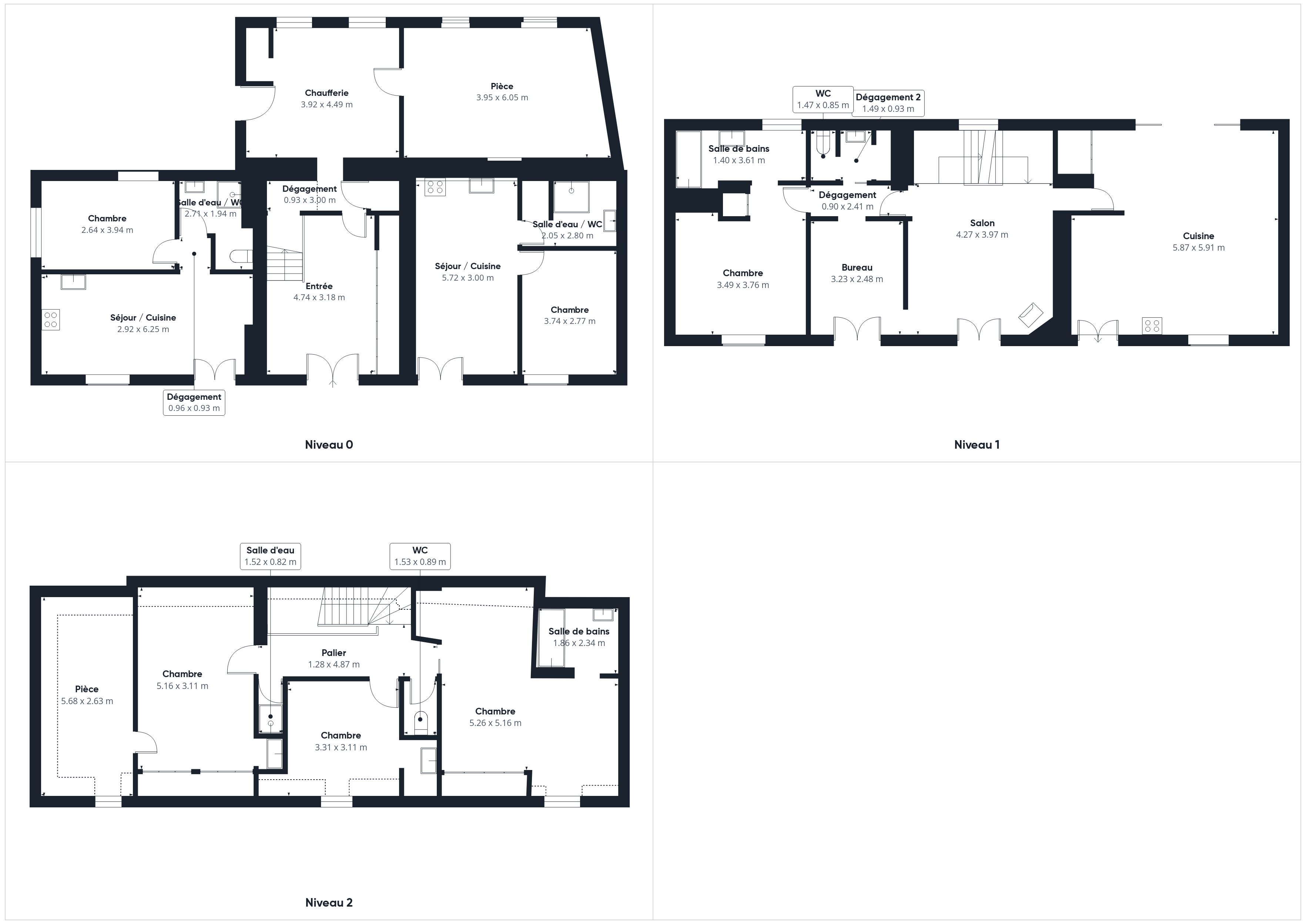
Floorplans
4
Download